面對當下眼花繚亂的風格裝修,【現代簡約】清新的色調、簡潔的線條,以及實用與美觀兼具的設計,都讓這種風格成為了許多人裝修首選。
本期案例將會為大家呈現一個88m2的3房一廳裝修設計,讓我們一起來感受現代簡約風格帶來的宜居與舒適。

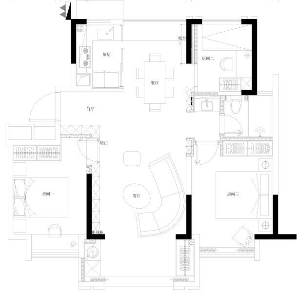
戶型丨3房1廳
面積丨88㎡
風格丨現代簡約
入戶空間

本案是開門見廳的戶型
入戶空間設計了簡約典雅的玄關柜
中間縷空的設計
進出門時可以擺放包包和瑣碎物品

上下柜充足的存儲空間
玄關柜底部懸空,更具藝術感
拖鞋可以放在下方,隨拿隨放不占地
讓玄關時刻保持整潔
客餐空間

(此處為效果圖)
客餐廳是家庭的核心區域
客餐廳一體化
整體簡約風格的設計
注重線條的流暢與整潔

(此處為效果圖)
直線元素的大量運用
不僅美觀,更是在視覺上
營造出一種井井有條的舒適感
此外,電視柜的設計也值得一提
回字型布局的電視柜讓人眼前一亮的同時
更是將清潔死角降到了最低
讓打掃變得更加輕松

廚房空間

廚房區域的設計同樣出色
一個好用的廚房
集合了美觀、收納多以及方便三大優點
冰箱嵌入式的設計
為廚房活動留出了足夠的空間

簡約大氣的大板吊頂和K10涼風機
搭配本案設計的櫥柜
就完美涵括了以上三點:
“黃金三角”做飯區域+充足的操作臺面+適宜的廚房環境
讓人愛上廚房做飯

再小的空
今頂設計師也不會浪費
設計一個簡單的水槽吊柜
隨手擺放清潔用具,太方便了!
臥室空間

(此處為效果圖)
主臥的設計中更注重整體色調的搭配
柔和的色調搭配上簡約的柜子
營造出一種安靜、舒適的氛圍
書房的設計則更注重實用性
床、衣柜以及書桌的完美融合
若空間有限,舍棄一邊床頭柜
放置書桌也是一個實用又貼心的選擇

(此處為效果圖)
在今頂家居設計師的幫助下
這個88m2的家煥發出了新的光彩
整個家被賦予了新的生命
每一個角落都充滿了溫暖的氣息
這就是現代簡約風格的力量
它用最簡單的方式
呈現出了家的真實模樣

(此處為效果圖)
新家裝修想要好看、環保又省錢?
選擇今頂家居來為您的家進行設計吧!
我們將用專業的知識和經驗
為您打造一個美好家居生活愿望
滿足您的幸福家居生活~
- END -





